热门搜索关键词:ag华体会 AG官方华体会 华体会·(hth)体育
技术知识当前位置:首页 > app华体会app在线下载 > AG真人官方华体会

由于废铝来源复杂,铝含量不一,因此在生产流程中的第一个环节就是对废杂铝进行分类,分得越细,再生铝中的化学成分就越容易控制。一般回收的废铝会有一些镶嵌件,比如钢铁等,因此需要对这些废铝制品进行拆解,然后经过清洗、破碎、磁选、烘干等工序制成废铝料。而
裂解气化技术,又称“热解气化”。国家十三五规划提出优先推广垃圾焚烧处理技术,而垃圾裂解技术作为直接焚烧技术的升级版,各方面都优于传统焚烧处理技术,属于国家鼓励开发使用的新技术,是各国大力发展的新一代垃圾处理技术。

在城市发生日新月异变化的同时,由大量拆建导致的建筑垃圾也在快速增加,据不完全统计,目前建筑垃圾占到了城镇垃圾总量的30%—40%,全国每年建筑垃圾生产量近几十亿吨。大量的城市建筑垃圾,给人民群众的生产和生活带来严重的困扰,对城市管理的压力也日渐加大。

中国生活垃圾的年产量约三亿吨,对环境产生了严重的危害。生活垃圾常用的处理方式有填埋、焚烧和堆肥,其中填埋、堆肥已陷入占用大量用地、资源化水平低、长期对土地和地下水有伤害等困境,而焚烧虽然能达到减容减量和资源化利用的目的,但存在二噁英污染和需

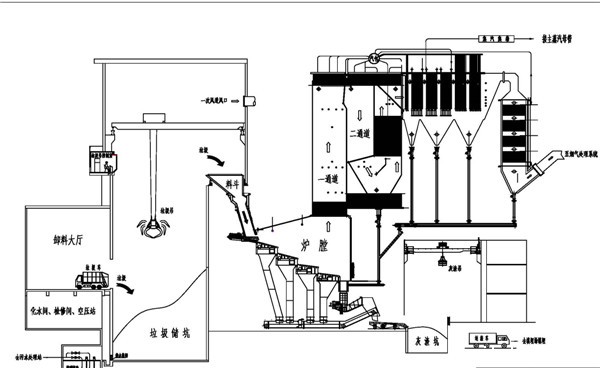
城镇生活垃圾蓄热裂解气化处理项目技术的核心是“生活垃圾蓄热裂解气化炉”。生活垃圾蓄热裂解气化炉包括一燃室、二燃室和蓄热器三个部分。生活垃圾裂解气化过程分两个阶段进行:第一阶段为缺氧状态的裂化和过氧燃烧,在一燃室内进行,工作温度控制在 600~75

双轴破碎机是一种固体废弃物处理设备,可用于将大型、坚硬、厚实和繁重的材料粉碎成小块,以便于后续处理和处置。在这篇文章中,我们将探讨双轴破碎机在固废处置应用现状。
水泥行业产能过剩,竞争白热化,在此背景下,水泥企业降低成本、绿色转型是大势所趋。从规模扩张、粗放生长向内生性、集约增长转型;从纯基础原材料产业向环保多功能产业转型;从产品同质化向多元化、差异化转型成为行业共识。我国出台了一系列的政策支持水泥
现阶段,我国的卫生填埋处理建设不够健全完善,需要处理的固体废物数量巨大,相应的无害化处理技术不够成熟完善。在这样的情况下,我国固体废物在处理过程中仍然存在很多方面的问题亟待解决。针对此类现象,本文从城市固体废物无害化的角度出发,对城市固体废物资

废铝破碎机设备是将废铝处理反复重熔,可再生利用的设备。在市场上金属材料中铝的可回收率高,废铝破碎机的出现解决了各种废铝加工难的问题,通过废铝破碎机处理后的废铝可循环再利用,再生后的材料品质较原生铝不会减少,所以铝被称为可持续利用的绿色金属材料

餐厨垃圾是在外面的餐馆或者家中每天都会产生的垃圾,餐厨垃圾有废物利用的潜力,但是也会对环境造成一定的危害。且餐厨垃圾当中还表现出大量的资源浪费现象,为了提高对地球资源的节省和餐厨垃圾的最大利用率,提出了一系列的资源化利用技术,采取各种现代技术

垃圾处理是城市发展绕不开的重要课题。垃圾的无害化处理只是垃圾处理的第一步要求,如何彻底杜绝生活垃圾处理中的二次污染,在垃圾处理过程中变废为宝,垃圾衍生燃料RDF技术无异是一个新的实践方向。

在我国的能源消耗中,火力发电所消耗的煤炭在 50% 以上,随着能源越来越少,火力发电厂节能减排已经成了当今社会所关注的话题,针对火力发电厂来说,了解火力发电用固体替代燃料不同资源化综合利用技术,选择适合火力发电厂使用的综合资源利用,固体替代燃料SRF厂家

危险废物处置中心处理工艺分三大系统:焚烧系统、填埋系统、回收利用系统。危废处理中心工艺车间一般如下图由甲乙类危废暂存库、危废暂存库、物化车间、固化车间、焚烧

为分析陈腐垃圾的焚烧特性,获取陈腐垃圾焚烧的主要参数,为后续的陈腐垃圾资源化利用工作提供借鉴,在华南某垃圾焚烧发电厂进行了陈腐垃圾焚烧试验。该次试验为纯烧,时间为期五天,陈腐垃圾为填埋时间(期龄)较短的浅层垃圾,与原生垃圾焚烧特性接近。各项关键指
生活垃圾破碎方法可分为干式、湿式、半湿式破碎三类。其中,生活垃圾湿式破碎与生活垃圾半湿式破碎是在破碎的同时兼有分级分选的处理。干式破碎即通常所说的破碎,按所用的外力即消耗能量形式的不同,干式破碎(以下简称破碎)又可分为机械能破碎和非机槭能破
近日,国家发展改革委制定了《政府定价的经营服务性收费目录清单(2022版)》,国家发展改革委2020年第7号公告同时废止。目录清单中涉及广东、北京、天津、河北、山西、内蒙古、辽宁、吉林、黑龙江、上海、江苏、浙江等30个省市和自治区的环保类别收费情况

垃圾衍生燃料是将生活垃圾经过机械生物处理,通常经过分选、破碎、干燥、成型等工序,将其中可 燃物加工成燃料。垃圾衍生燃料(RDF)就是浓缩的生活垃圾,通过生活垃圾机械生物处理(前处理/预处理),去除灰土等无机物,以及减少水分后,加入添加剂,压缩成所需形状的
随着很多工厂的出现,工业垃圾也在不断的增加,一般来说,工业垃圾都是有一定的危害性的,如果说处理不好的话,就会对环境产生很大的影响。因此,对于一般的工业垃圾,也需要选择合适的处理方法,相比较其他工业垃圾来说,一般工业垃圾处理起来比较的容易,下面就为大家简

大件垃圾是居民日常生活中产生的体积较大、整体性强,需要拆分后再处理或利用的垃圾,如沙发、橱柜、床、床垫、桌椅、茶几、衣柜、书柜、电视柜、鞋柜等。

一、废铝料的备制首先,对废铝进行初级分类,分级堆放,如纯铝、变形铝合金、铸造铝合金、混合料等。对于废铝制品,应进行拆解,去除与铝料连接的钢铁及其他有色金属件,再经清洗、破碎、磁选、烘干等工序制成废铝料。对于轻薄松散的片状废旧铝件,如汽车上的锁紧臂

废液处置系统一般分为酸性废液处置工艺、碱性中性处置工艺两个方向,热值较高的废液一般不通过废液系统来处置。总的说来按规范要求通过吨箱或者废液罐盛装,除杂质后通过气动隔膜泵或者离心泵泵送至窑头窑门罩内焚烧处置。

面对当前的“建筑垃圾围城”局面,人们已经开始意识到建筑垃圾的危害。为什么建筑垃圾资源化处置的呼声越来越高?建筑垃圾资源化有什么样的重要意义呢?

中国生物质资源丰富,但利用效果不好。本文主要论述了生物质耦合发电技术路线,希望通过实施生物质耦合发电技术,推动生物质资源的有效利用,为老百姓和企业带来一定的经济收入。

陈腐垃圾是什么意思?陈腐垃圾处理的必要性是什么?处理陈腐垃圾有什么好处?下面就有hth综合智能环保小编就来介绍一下吧。

一、建筑废料的组成 建筑废料所产生的主要集中在生产、施工和装修期间,建筑垃圾的主要成分是混凝土、石灰、沙石、渣土等,不会有“二次环境污染”问题,更有利于处理